Tarnowo Podgórne ul. Cicha – Lokal z lewej strony budynku 141.16 m2 – działka 447 m2
949,000 zł
Logos Developer poleca na sprzedaż domy w Tarnowie Podgórnym przy ulicy Cichej.
Spokojna okolica , osiedla domów jednorodzinnych.
Pełne uzbrojenie, ulica w kostce brukowej – centrum Tarnowa Podgórnego
Blisko przedszkole ,szkoła i Tarnowskie Termy.
Powierzchnia lokalu to 141.16 m2+ strych około 40 m2. , powierzchnia działki 447 m2.
Szczegóły nieruchomości
- 30.01.2026: 0 zł
- 30.01.2026: 949 000 zł
Powierzchnia użytkowa: 141.16 m²
Cena za m²: 6 722,87 zł
Pow. zabudowy: 189.95 m²
Pow. działki: 447 m²
Liczba pokoi: 4
Rodzaj zabudowy: wolnostojący
Status: dostępne
Data dodania: 09.02.2026
Lokalizacja: 62-080 Tarnowo Podgórne, ul. Cicha Działka nr 1623, pow. poznański
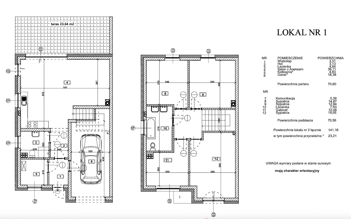
Rozkład pomieszczeń:
Parter: wiatrołap, hol, łazienka, pokój dzienny z aneksem kuchennym, kotłownia oraz garaż.
Piętro: łazienka, komunikacja , 4 sypialnie (możliwość
zaadoptowania jednej sypialni na gabinet/biuro)
Przemyślany i nowoczesny projekt w pełni dostosowany do potrzeb dużej rodziny.
Brak skosów na piętrze. Przestronne oraz ustawne sypialnie, dwie komfortowe łazienki.
Powierzchnia działki do lokalu 447 m2
Powierzchnia lokalu 141.16 m2
Możliwość zawarcia umowy deweloperskiej oraz przygotowania zmian pod klienta na każdym etapie budowy.
Bogaty standard budowlany:
Ściany nośne porotherm 24cm,
Ściana po między lokalami z cegły ceramicznej akustycznej,
Dachówka ceramiczna Creaton 30 lat gwarancji,
Budynek ocieplony styropianem o grubości 20 cm,
Ocieplenie podłogi 15 cm,
Stolarka okienna KRISPOL 3 szybowe, oklejenie w kolorze z dwóch stron w cenie lokalu.
Rolety zewnętrzne elektryczne w każdym oknie,
W salonie okno HST w cenie lokalu,
Brama garażowa segmentowa z napędem elektrycznym na pilota,
Kocioł gazowy kondensacyjny 2 funkcyjny,
Ogrzewanie podłogowe na parterze (możliwość założenie na piętrze)
W salonie wkład kominowy ceramiczny z możliwością podłączenia kominka,
Front budynku w pełni wybrukowany oraz opaska wokół budynku,
Taras za budynkiem wyłożony kostką brukową,
Ogrodzenie działki bez frontu,
Dodatkowo w budynku system instalacji alarmowej, kable antenowe oraz internetowe w każdej sypialni.
Wyjście pod ładowarkę samochodową w cenie lokalu.
Pełne uzbrojenie: Prąd, woda, gaz oraz kanalizacja.
Szybki dojazd do centrum Poznania drogą DK 92.
Odbiór: 1 kwartał 2027r
Cena: 949000 złotych brutto.
Zapewniamy darmową obsługę w zakresie finansowania zakupu naszych nieruchomości.
Zapraszamy na prezentację!
KONTAKT:
Rafał Nowak
Tel. 669-088-199
Mail: r.nowak@next.nieruchomosci.pl
NEXT Nieruchomości
Ul. Meissnera 2/U2
60-408 Poznań
Prospekt Informacyjny
Download|
Rynek |
Pierwotny |
|
Typ ogłoszeniodawcy |
Logos Developer |
|
Okna |
Plastikowe 3 szybowe KRISPOL ,okna HST w salonie |
|
Pokrycie dachu |
Dachówka Ceramiczna |
|
Ogrzewanie |
Gazowe |
|
Rolety |
Elektryczne |
