Lusówko ul. Przystaniowa – Lokal Lewy 140.17 m2 – działka 502 m2 osiedle
869,000 zł
Logos Developer poleca na sprzedaż dom w Lusówku przy ulicy Przystaniowej – osiedla Morskie. Bardzo spokojna okolica , nowe osiedle domów jednorodzinnych w pobliżu szkoła , sklepy , jezioro. Powierzchnia każdego lokalu to 140.17 m2 + strych około 40 m2.
Szczegóły nieruchomości
- 30.01.2026: 0 zł
- 30.01.2026: 869 000 zł
Powierzchnia użytkowa: 140.17 m²
Cena za m²: 6 199,61 zł
Pow. zabudowy: 189.98 m²
Pow. działki: 1004 m²
Liczba pokoi: 4
Rodzaj zabudowy: wolnostojący
Status: dostępne
Data dodania: 06.02.2026
Lokalizacja: 62-080 Lusówko, ul. Przystaniowa dz. 384/43, gm. Tarnowo Podgórne, pow. poznański
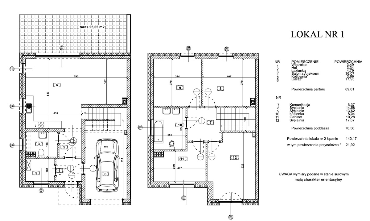
Rozkład pomieszczeń:
Parter: wiatrołap, hol, łazienka, pokój dzienny z aneksem kuchennym, kotłownia oraz garaż.
Piętro: łazienka, garderoba, komunikacja oraz 3 sypialnie.
Przemyślany i nowoczesny projekt w pełni dostosowany do potrzeb dużej rodziny.
Brak skosów na piętrze. Przestronne oraz ustawne sypialnie, dwie komfortowe łazienki.
Powierzchnia działki do lokalu 502.50 m2.
Powierzchnia lokalu 140.17 m2
Możliwość zawarcia umowy deweloperskiej oraz przygotowania zmian pod klienta na każdym etapie budowy.
Bogaty standard budowlany:
- Ściany nośne porotherm 24cm,
- Ściana po między lokalami z cegły ceramicznej akustycznej,
- Dachówka ceramiczna Creaton 30 lat gwarancji,
- Budynek ocieplony styropianem o grubości 20 cm,
- Ocieplenie podłogi 15 cm,
- Stolarka okienna trzy szybowe,
- Rolety zewnętrzne elektryczne w każdym oknie,
- Brama garażowa z napędem elektrycznym na pilota,
- Kocioł gazowy kondensacyjny 2 funkcyjny,
- Ogrzewanie podłogowe na parterze + łazienka na piętrze,
- W salonie wkład kominowy ceramiczny z możliwością podłączenia kominka,
- Front budynku w pełni wybrukowany oraz opaska wokół budynku,
- Taras za budynkiem wyłożony kostką brukową,
- Ogrodzenie działki bez frontu,
- Dodatkowo w budynku system instalacji alarmowej, kable antenowe oraz internetowe w każdej sypialni.
Pełne uzbrojenie: Prąd, woda, gaz oraz kanalizacja.
Szybki dojazd do centrum Tarnowa Podgórnego.
W pobliżu szkoła , centrum handlowe , jezioro.
Odbiór: IV kwartał 2026 roku.
Cena: 869000 złotych brutto – do negocjacji.
Zapewniamy darmową obsługę w zakresie finansowania zakupu naszych nieruchomości.
Zapraszamy na prezentację!
KONTAKT:
Rafał Nowak
Tel. 669-088-199
Mail: r.nowak@next.nieruchomosci.pl
NEXT Nieruchomości
Ul. Meissnera 2/U2
60-408 Poznań
Prospekt Informacyjny
Download|
Rynek |
Pierwotny |
|
Wykonawca |
Logos Developer |
|
Okna |
Plastikowe 3 szybowe KRISPOL, okno HST w salonie |
|
Rolety |
Elektryczne |
|
Pokrycie dachu |
Dachówka Ceramiczna |
|
Ogrzewanie |
Gazowe |
